Negozio in vendita

Novi Ligure, Via Roma
€ 60.000
Prezzo aggiornato
5 locali 5 locali
130 Mq 130 Mq
2 bagni 2 bagni

Negozio in vendita

Novi Ligure, Via Roma

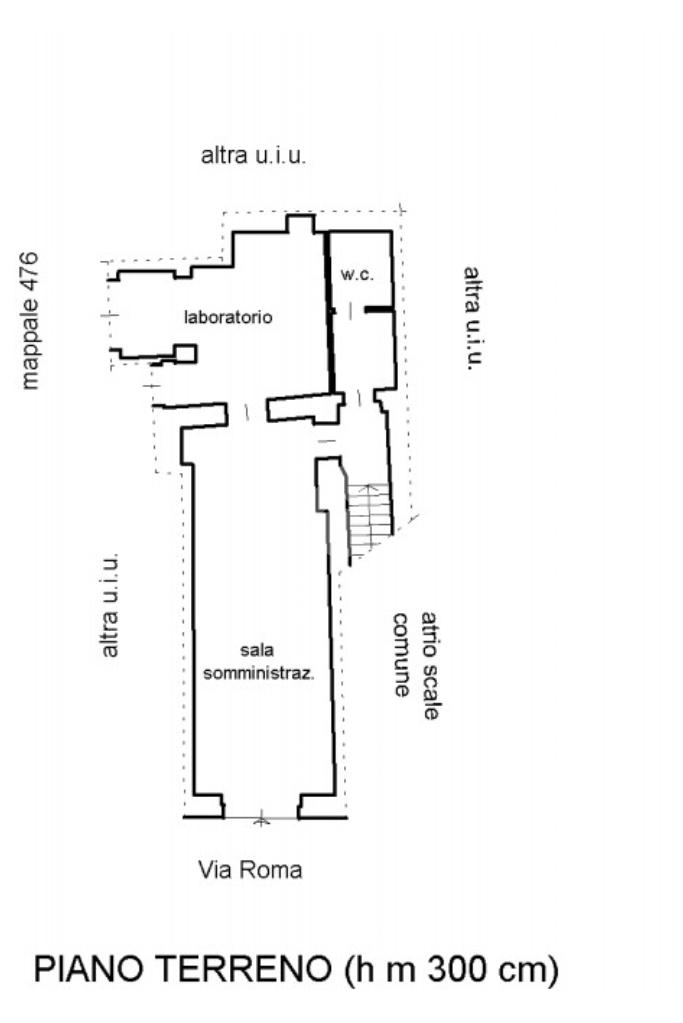
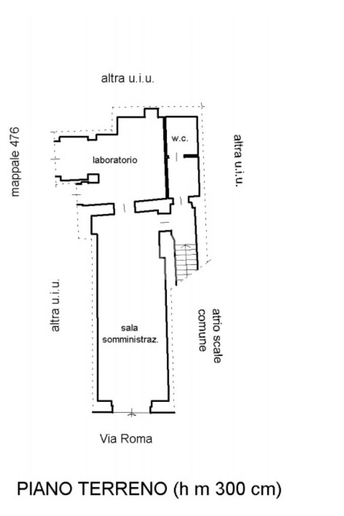
Descrizione annuncio

Novi Ligure- Via Roma, in vendita locale commerciale di circa 122 mq dalle grandi potenzialità.

Una posizione strategica, perfetta per chi desidera dare visibilità e valore alla propria attività.

L’ingresso si apre su una sala luminosa e ben proporzionata ottima per essere un punto di ritrovo o un’elegante area di somministrazione.

Le superfici consentono di organizzare lo spazio con facilità, offrendo un’ottima base per molteplici tipologie di attività.

Dalla sala principale si accede al laboratorio/cucina dotato di canna fumaria, elemento prezioso e ormai raro, permettendo di realizzare cucine professionali, forni per pizzeria o laboratori artigianali senza interventi strutturali invasivi.

Completa il piano un bagno clienti predisposto e conforme alle normative vigenti.

Scendendo al piano inferiore, collegato internamente troviamo una sala riservata e raccolta, perfetta come area privata, spazio lounge, sala degustazione o zona dedicata, un valore aggiunto in termini di comfort e personalizzazione.

La zona servizi è completa e ben organizzata: uno spogliatoio con bagno e doccia per il personale, un locale tecnico con addolcitore d’aria per la gestione ottimale degli impianti e un magazzino di deposito, pratico e facilmente accessibile.

Con una superficie complessiva di circa 122 metri quadrati, questo locale si distingue per la razionalità della distribuzione, l’ottimo stato generale e la capacità di adattarsi a differenti destinazioni d’uso: ristorazione, bar, gastronomia, pasticceria, wine bar, ma anche negozio con laboratorio o spazio espositivo.

Un locale che unisce funzionalità e fascino, pronto per essere personalizzato e vissuto, la presenza della canna fumaria ne amplia ulteriormente le potenzialità, offrendo a chi desidera avviare o trasferire la propria impresa un punto di partenza solido e completo.

Un’opportunità ideale per chi cerca un immobile pronto all’uso, in una posizione centrale e di prestigio, dove poter realizzare il proprio progetto professionale con stile e funzionalità.

Mostra tutto

Nelle vicinanze

Trasporto pubblico Trasporto pubblico
Novi Ligure
Novi Ligure
390 m
Trasporto pubblico
200 m
Ricariche auto elettriche Ricariche auto elettriche
EnelX EVA+ Novi Ligure
890 m
Be Charge Novi Center
1,4 Km
Scuole Scuole
Vecchia Scuola Elementare "Martiri della Benedicta"
650 m
Istituto Comprensivo 2
760 m
Scuola paritaria Kid School
1,2 Km
Scuola Media Statale G. Boccardo
1,2 Km
Scuole Pubbliche - Elementari - Scuola Elementare G.Rodari
1,3 Km
Farmacia Farmacia
Farmacia Giara
60 m
Farmacia Bajardi
170 m
Parafarmacia Dottor Spina
310 m
Farmacia Dottor Beccaria
400 m
Farmacia Valletta
510 m
Ospedali Ospedali
Ospedale San Giacomo
520 m
Supermercati Supermercati
Gulliver
440 m
Dico
450 m
Lidl
620 m
Supermercato U2
1,1 Km
Penny Market
1,1 Km
Negozi Negozi
Negozi
390 m
Il forno del borgo
580 m
Bar Bar
Bar Caffetteria Antica Novi
180 m
Bar
270 m
Bar Lasagna
350 m
Caffetteria GiorgioLombardi
360 m
Bar Luna
760 m
Ristoranti Ristoranti
Il Banco
180 m
Pizzeria Ristorante La Tavernetta
190 m
Trattoria Giulia
200 m
Osteria pizzeria Cavour
250 m
Ristorante Corona
320 m
Mostra tutto

Caratteristiche

Rif.:
61128729
Piano:
Terra di 2
Totale piani:
2
Condizionamento:
Autonomo
Ascensore:
No
Riscaldamento:
Autonomo
Mostra tutto
Prezzo Prezzo
€ 60.000
Rata mutuo Rata mutuo
€ 285 / mese
Proponi il tuo prezzoProponi il tuo prezzo

Classe Energetica

G
G
G
G
G
G
G
G
G
Anno di costruzione:
1967
Riscaldamento:
Autonomo
Tipo impianto:
Ad aria
Tipo alimentazione:
Metano

Prezzo ridotto di €1 (15%%)

Ti interessa visionare l'immobile?

Fissa un appuntamento  Fissa un appuntamento

Richiedi informazioni

Clicca su Leggi per aprire l'informativa
* Questi campi sono obbligatori

Calcola il tuo mutuo

Semplice e senza impegno
Anticipo

( % )
Mutuo

( % )

pochi semplici passi

inserisci i tuoi dati
Questionario completato
Grazie per aver richiesto un appuntamento senza impegno con un nostro Consulente del Credito e Assicurativo.

Hai inserito correttamente tutti i dati necessari e a breve riceverai una e-mail con un link da convalidare per inviare i tuoi dati.
Affiliato
Gs Immobiliare Srl
Via Mazzini, 50/B 15067 Novi Ligure (AL)

Il nostro staff


  • Salvatore Guidotti
    Affiliato
Via Mazzini, 50/B 15067 Novi Ligure (AL)
Zona: Novi Ligure-Tortona
Mostra su mappa
Affiliato
Gs Immobiliare Srl
Via Mazzini, 50/B 15067 Novi Ligure (AL)

2026 Tecnocasa Franchising S.p.A. - P. IVA 08365160152 - Via Monte Bianco 60/A 20089 Rozzano (MI). Ogni agenzia ha un proprio titolare ed è autonoma. Privacy policy | Policy utilizzo | Cookie policy