Ufficio in vendita

Tortona, Via Domenico Schiavi
€ 64.000
3 locali 3 locali
60 Mq 60 Mq
1 bagno 1 bagno

Ufficio in vendita

Tortona, Via Domenico Schiavi

Descrizione annuncio

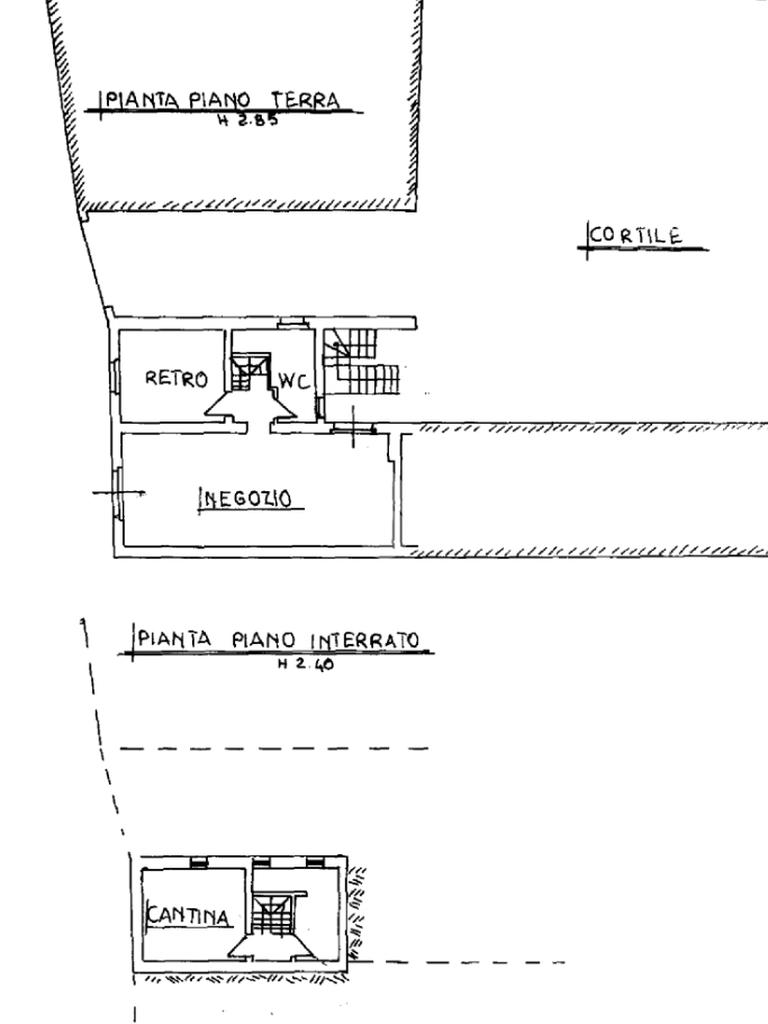
Tortona- si propone in vendita, in una delle zone più di passaggio e storica della città, un ufficio al piano rialzato, ideale per professionisti, studi associati o attività che necessitano di ambienti funzionali e ben distribuiti.

L'immobile si apre su una stanza principale particolarmente luminosa, uno spazio accogliente e rappresentativo, perfetto come reception.

A seguire troviamo un bagno e una seconda stanza separata, soluzione che consente di organizzare più postazioni lavorative.

All'interno dell'immobile è presente una scala interna che conduce alla cantina.

Questo ambiente, particolarmente asciutto e vivibile, possiede bocche di lupo, termosifone e predisposizione per un secondo bagno; questo locale offre un ulteriore spazio da destinare ad archivio, sala riunioni e/o area operativa.

La proprietà dispone di due ingressi indipendenti: uno con accesso diretto su strada, ideale per garantire visibilità e comodità alla clientela, e un secondo ingresso dal cortile condominiale dove è presente un posto auto privato.

Prezzo di vendita richiesto: €64.000,00.

Cosa aspetti! Contattaci subito per avere maggiori informazioni e/o per fissare un appuntamento di visione!

Mostra tutto

Nelle vicinanze

Trasporto pubblico Trasporto pubblico
Tortona
Tortona
680 m
Fermata Bus N.4 - ARFEA
Fermata Bus N.4 - ARFEA
180 m
Fermata Bus N.33 - ARFEA
Fermata Bus N.33 - ARFEA
280 m
Ricariche auto elettriche Ricariche auto elettriche
Tortona Porta Ticinese | BeCharge
200 m
Tortona Tito Speri | BeCharge
420 m
Tortona De Gasperi | EnelX
540 m
EnelX EVA+ Tortona
790 m
Tortona Silla | EnelX
920 m
Scuole Scuole
Istituto Statale Istruzione Superiore Guglielmo Marconi
410 m
Scuola primaria "Gianni Rodari"
460 m
Farmacia Farmacia
Farmacia Centrale
450 m
Iper Farma
1,1 Km
Ospedali Ospedali
Ospedale Tortona
830 m
Supermercati Supermercati
Esselunga di Tortona
390 m
Gulliver
680 m
Iper
1,0 Km
Aldi
1,7 Km
LIDL
2,0 Km
Negozi Negozi
Smeck
460 m
Il mondo di pannolino
500 m
Il Fornaio S.R.L.
520 m
Negozi
650 m
Bar Bar
Zuccarelli
440 m
Bar
1,5 Km
Ristoranti Ristoranti
Trattoria del Ciccio
360 m
La pace
450 m
Napuleie
490 m
Al Voltone
660 m
Fujiyama
840 m
Mostra tutto

Caratteristiche

Rif.:
61177551
Piano:
Rialzato di 3
Totale piani:
3
Posti auto:
1
Balconi:
1
Condizionamento:
Autonomo
Mostra tutto
Prezzo Prezzo
€ 64.000
Rata mutuo Rata mutuo
€ 304 / mese
Spese annue Spese annue
€ 0
Proponi il tuo prezzoProponi il tuo prezzo

Classe Energetica

F
F
F
F
F
F
F
F
F
Anno di costruzione:
1967
Riscaldamento:
Autonomo
Tipo impianto:
A radiatori
Tipo alimentazione:
Metano

Ti interessa visionare l'immobile?

Fissa un appuntamento  Fissa un appuntamento

Richiedi informazioni

Clicca su Leggi per aprire l'informativa
* Questi campi sono obbligatori

Calcola il tuo mutuo

Semplice e senza impegno
Anticipo

( % )
Mutuo

( % )

pochi semplici passi

inserisci i tuoi dati
Questionario completato
Grazie per aver richiesto un appuntamento senza impegno con un nostro Consulente del Credito e Assicurativo.

Hai inserito correttamente tutti i dati necessari e a breve riceverai una e-mail con un link da convalidare per inviare i tuoi dati.
Affiliato
Gs Immobiliare Srl
Via Mazzini, 50/B 15067 Novi Ligure (AL)

Il nostro staff


  • Salvatore Guidotti
    Affiliato
Via Mazzini, 50/B 15067 Novi Ligure (AL)
Zona: Novi Ligure-Tortona
Mostra su mappa
Affiliato
Gs Immobiliare Srl
Via Mazzini, 50/B 15067 Novi Ligure (AL)

2026 Tecnocasa Franchising S.p.A. - P. IVA 08365160152 - Via Monte Bianco 60/A 20089 Rozzano (MI). Ogni agenzia ha un proprio titolare ed è autonoma. Privacy policy | Policy utilizzo | Cookie policy